Ruim 5 kamer appartement op de tweede verdieping met privé buitenruimte
Ruim 3 kamer appartement (Loft) met private Patio
Koopprijs: € 499.000 k.k.
Meerwerken reeds uitgevoerd:
• Uitbreiding Patio met overdekt gedeelte
• Verruiming badkamer met aparte toiletruimte
• Begaanbaar maken verhoogde trappenhal met beloopbaar glas
• Hoogwaardige afwerking buitenruimte, inclusief verlichting
Prognose oplevering in 2023
Uiteraard fijn om te weten wat u precies kunt verwachten. De oplevering van dit appartement staat momenteel gepland in mei 2023.
Een unieke eigen plek midden in het centrum van Tiel met alle faciliteiten op een steenworp afstand. Dromen van rust en ruimte in de warme geborgenheid van een luxe monumentaal pand.

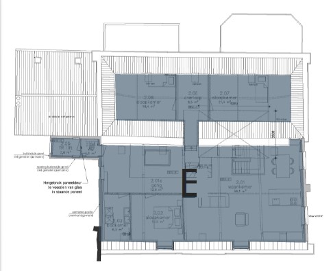
Indeling: Op de eerste verdieping vindt u de voordeur naar de Loft op de tweede verdieping. Dit uiterst ruime appartement van circa 145 m2 bestrijkt de oppervlakte van vrijwel het gehele Patriciërshuis en bevindt zich onder de beide kapconstructies.
Achter de nieuwe voordeur zult u verrast worden door de ruime, lichte hal die u geheel naar eigen smaak kunt inrichten; naast een garderobe is er ruimte voor een kast, een zitje of meer dan menshoge planten. Dit geeft al direct een persoonlijke sfeer en maakt het direct uw thuis.
De nieuwe houten trap naar De Loft heeft een comfortabele loop en bij elke trede die u of uw bezoekers verder stijgen komt er meer zicht op de imposante en monumentale dakconstructie, die geheel in het zicht blijft!
Het ruimtelijke effect van de bijna 6 meter hoge kap is enerzijds indrukwekkend maar wordt dankzij de houten spanten en sporen ook direct als heel huiselijk ervaren. Daarnaast is er opmerkelijk veel bruikbare en beloopbare vloeroppervlakte omdat de kap op ruime hoogte boven de vloer begint. Dankzij de vrijdragende constructie van de hoge kap is de hoofdruimte vrij door u in te delen en zijn indelingswanden ook in de toekomst wederom te verplaatsen of weg te halen. Hierdoor is er een grote mate van flexibiliteit, nu en in de toekomst!
De getoonde plattegrond moet dan ook gezien worden als één van de vele mogelijke indelingen, maar u kunt bij de aankoop van dit appartement uw eigen creativiteit aanboren en een voor u meest passende indeling aan ons voorleggen. Onze architect helpt u graag om uw plan passend te maken binnen het pand en de regelgeving!
De al aanwezige wanden van de Loft zijn in de bestaande situatie gestukadoord en de plafondafwerking bestaat uit witte, geïsoleerde beplating; samen met de houten balken geeft dit een aantrekkelijk geheel. Aan de zijde van de Ambtmanstraat zijn twee nieuwe geïsoleerde dakkapellen aangebracht, zodat naast de aanwezige dakramen extra licht, lucht en zicht gecreëerd is.
De slaap-/werkkamer is ruim van opzet en afgescheiden van de woonkamer door een halfhoge wand (circa 2.20 meter), waardoor de gehele kap goed zichtbaar blijft. Naast de slaap-/werkkamer is in een verhoging het glas-in-lood van het plafond van het hoofd trappenhuis geplaatst. Dit is een monumentaal belangrijk onderdeel van het pand en zal gehandhaafd blijven. Het is aan de bovenzijde voorzien van een beloopbare brandwerende
glasplaat, wat een uniek en sfeervolle “tussenvloer” vormt in de Loft.
In de westgevel is naast het bestaande raam extra raam gerealiseerd aan de zijde waar de keuken gedacht is. Dit geeft naast extra daglicht en ventilatiemogelijkheden ook meer uitzicht en contact met buiten.
De ruimtelijkheid van dit appartement wordt verrassend versterkt doordat een doorgang aanwezig is naar een tweede, lagere kapconstructie. Voorheen had dit gedeelte van het Patriciërshuis de functie van een droogzolder, echter dankzij een gedeeltelijke overkapping van de beide daken is er veel extra ruimte gecreëerd.
De Techniekruimte van één van de eerste liften van Nederland is nog geheel compleet en monumentaal beschermd.
Patio
Uiteraard hoort bij een Loft een imposante buitenruimte. Deze is gerealiseerd als “Patio” tussen de beide daken van het appartementen en brengt daardoor een grote hoeveelheid “licht-en-lucht” binnen. Een aanzienlijk gedeelte van de buitenruimte is overdekt en biedt plaats aan zowel een Lounge set als een Dining set. Het geheel vormt een uniek en intiem geheel en zal met name ook in de avonduren tot de verbeelding spreken, wanneer het wordt aangelicht met zicht vanuit de woonkamer.
De ruim bemeten afmetingen, de grote mate van vrije indeelbaarheid en de sfeer die het van zichzelf al heeft, maakt het Loft tot een fantastische mogelijkheid om al uw woonwensen te realiseren.
Een unieke eigen plek midden in het centrum van Tiel met alle faciliteiten op een steenworp afstand. Dromen van rust en ruimte in de warme geborgenheid van een luxe monumentaal pand; dat kan met dit appartement omgezet worden in werkelijkheid!
Renvooi
• De meeste ruimten zijn niet helemaal haaks, hierdoor kunnen afwijkingen ontstaan.
• De plaats van radiatoren zijn aangegeven met een zwarte driehoek; afmeting en aantal panelen hangt af van de betreffende ruimte en hoogte
overdekt balkon.
• Kopers wensen, die sterk afwijken van de plattegrond of impact hebben op constructieve elementen dan wel het uiterlijk van het gebouw, dienen te worden voorgelegd aan Monumentencommissie alvorens ze uitgevoerd kunnen worden.
OPMERKING
In de koopprijs is de realisatie van een complete badkamer en keuken meegenomen, op de plaats zoals aangegeven op de tekening.
De Loft is verder geheel vrij indeelbaar. Basisinstallaties zijn aanwezig, uitbreidingen c.q. verlegging van leidingen is bespreekbaar maar worden als meer- en minderwerk verrekend.










De 5 Patriciërs
Een unieke transformatie van het voormalige patriciërshuis naar 5 zelfstandige wooneenheden.
Naam contact op met Dolron Rivierenland Makelaars voor een uitgebreide brochure of bezichtiging.
Bekijk de unieke mogelijkheden
- Appartement A (verkocht onder voorbehoud)
- Appartement B (verkocht)
- Appartement C (verkocht)
- Appartement D (verkocht)
- Appartement E – Loft (te koop)