Een uiterst comfortabel tweekamer appartement dat doet denken aan een Frans hotel, met haar hoge kamers en dito ramen.

Tegenover de ingang van Appartement C aan de overkant van de monumentale gang, bevindt zich Appartement D.
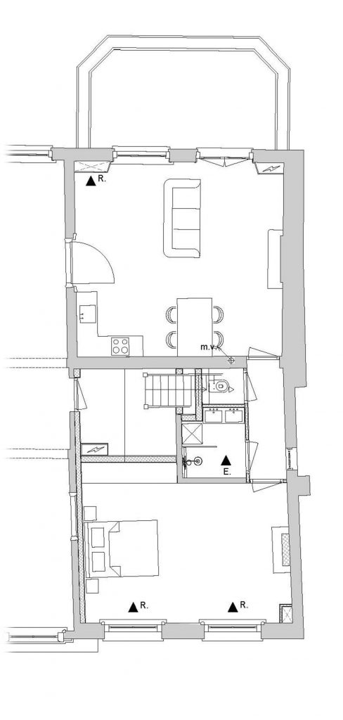
Een statige paneeldeur biedt toegang tot de lichte woonkamer, waarin dubbele deuren met groot glasoppervlak worden gerealiseerd, die toegang gaan bieden tot een ruim niet-overdekt balkon. Dit balkon zal ruim genoeg zijn voor circa 6-8 personen en biedt weer een
heel ander perspectief op de prachtige Ambtmanstuin.
In een hoek van de woonkamer wordt een keuken gerealiseerd die past binnen de sfeer van het appartement. Ook hier gaat het, samen met de marmeren schouw en het rijk versierde plafond, een stijlvol geheel vormen.
Via de private gang is de toiletruimte bereikbaar, die ook voor uw bezoek makkelijk is te bereiken.
De separate badkamer is via de slaapkamer toegankelijk en wordt voorzien van een douche, dubbele wastafel en wasmachine- aansluitingen.
Op het einde van de gang bevindt zich de deur naar de slaapkamer, die zich aan de voorzijde van het pand bevindt. Deze slaapkamer is zeer ruim van opzet en heeft twee prachtig grote vensters met gesloten achterzet-ramen ter voorkoming van tocht en als geluidwering. De slaapkamer zal mechanisch geventileerd worden voor een goed binnenklimaat.
De slaapkamervloer veert nu nog erg maar zal versterkt worden zodat dit verholpen is bij de oplevering.
De stijlvolle zwart-marmeren schouw, die momenteel al in de ruimte aanwezig is, wordt verplaatst naar de buitenwand, zodat ruimte gecreëerd wordt voor een kasten-wand of boudoir.
Als kopers wens kan de slaapkamer opgesplitst worden in twee separate ruimten, waardoor een extra slaap- of werkkamer wordt gerealiseerd. In dat geval zal de gang iets verlengd dienen te worden. Al-bij al een uiterst comfortabel tweekamer appartement dat doet denken aan een Frans hotel, met haar hoge kamers en dito ramen.
Als onderdeel van “De 5 Patriciërs” met haar ruime entree, statige gangen, rijk trappenhuis en niet te vergeten de diepe tuin, kunt u zich als eigenaar/ bewoner van dit appartement met recht gelukkig prijzen!
Renvooi
• De meeste ruimten zijn niet helemaal haaks, hierdoor kunnen afwijkingen ontstaan
• De plaats van radiatoren zijn aangegeven met een zwarte driehoek.; afmeting en aantal panelen hangt af van de betreffende ruimte en hoogte
overdekt balkon
• Koperswensen, die sterk afwijken van de plattegrond of impact hebben op constructieve elementen dan wel het uiterlijk van het gebouw, dienen te worden voorgelegd aan Monumentencommissie alvorens ze uitgevoerd kunnen worden





De 5 Patriciërs
Een unieke transformatie van het voormalige patriciërshuis naar 5 zelfstandige wooneenheden.
Naam contact op met Dolron Rivierenland Makelaars voor een uitgebreide brochure of bezichtiging.
Bekijk de unieke mogelijkheden
- Appartement A (verkocht onder voorbehoud)
- Appartement B (verkocht)
- Appartement C (verkocht)
- Appartement D (verkocht)
- Appartement E – Loft (te koop)