2 kamer appartement op de begane grond met museale kwaliteiten
Koopprijs: € 385.000 k.k.
Meerwerken reeds uitgevoerd
• Fineo vacuümglas in de achtergevel (HR+++)
• Vloerverwarming in woonkamer, slaapkamer en keuken
• Plafonds gefixeerd, gerestaureerd en wit gespoten
• Luxe keuken met compleet apparatuur
• Grohe garnituur in badkamer en spiegel met LED
• Villeroy & Boch vrijhangend toilet
Prognose oplevering
Uiteraard fijn om te weten wat u precies kunt verwachten. Het appartement is gereed om aan u te worden opgeleverd.

Als u door de voordeur stapt van dit appartement komt de grandeur van weleer u direct tegemoet: de rijke lambriseringen, de beide marmeren schouwen alsmede de weldadig versierde plafonds zijn een lust voor het oog en doet iedereen met verbazing rondkijken.
De pracht en hoogte van zowel de salon als de tuinkamer komen imponerend en rijk over.
De schuifdeuren “en suite” maken het plaatje compleet en bieden een ongeëvenaard doorkijkje naar de diepe stadstuin. Daarnaast kunnen ze de beide ruimten van elkaar scheiden, zodat een zekere mate van privacy of intimiteit geboden kan worden. Aan de straatzijde zijn de oorspronkelijke luiken (blinds) nog aanwezig. Deze zijn opvouwbaar en vallen prachtig weg in de rijke betimmering van de vensterbanken.
De woonkamer versterkt met haar marmeren schouw en grote glazen schuifdeuren met bovenlichten de aloude functie van deze kamer: heerlijk toeven in een luxe omgeving met zicht op de “onder architectuur” aangelegde landschapstuin.
Het overdekte balkon is voorzien van glas aan de zijkanten, wat tocht buiten houdt. Door vormgeving en detaillering waant u in een romantische film van weleer, met u in de hoofdrol!
De monumentale sierelementen van de beide appartement dienen onaangetast te blijven, vandaar dat keuken, badkamer, toilet en slaapruimte worden aangeboden in de vorm van een “vrijstaand inbouwpakket”, dat de lambriseringen en sierplafonds niet raakt. In deze brochure zijn 2
varianten uitgewerkt ter inspiratie.
De badkamer wordt in ieder geval voorzien van een wastafel, toilet en inloopdouche, tevens een aansluiting voor de wasmachine; de ruimte wordt mechanisch geventileerd Al bij al met recht een ”pareltje” te noemen.
Renvooi
• De meeste ruimten zijn niet helemaal haaks, hierdoor kunnen afwijkingen ontstaan
• De plaats van radiatoren zijn aangegeven met een zwarte driehoek.; afmeting en aantal panelen hangt af van de betreffende ruimte en hoogte
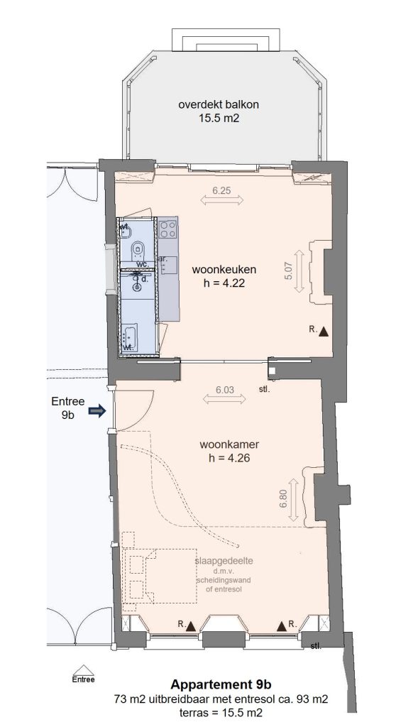
overdekt balkon
• Koperswensen, die sterk afwijken van de plattegrond of impact hebben op constructieve elementen dan wel het uiterlijk van het gebouw, dienen te worden voorgelegd aan Monumentencommissie alvorens ze uitgevoerd kunnen worden


















De 5 Patriciërs
Een unieke transformatie van het voormalige patriciërshuis naar 5 zelfstandige wooneenheden.
Naam contact op met Dolron Rivierenland Makelaars voor een uitgebreide brochure of bezichtiging.
Bekijk de unieke mogelijkheden
- Appartement A (verkocht onder voorbehoud)
- Appartement B (verkocht)
- Appartement C (verkocht)
- Appartement D (verkocht)
- Appartement E – Loft (te koop)