Een bijzonder en verrassend appartement met, in al zijn bescheidenheid, een grandeur van smaak en grote klasse!

De monumentale trap in de centrale hal brengt u naar de eerste verdieping, waar aan de linkerzijde van de authentieke gang een smaakvol en praktisch in te richten appartement wordt gerealiseerd.
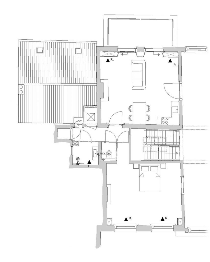
Dit tweekamer appartement is verrassend ruim van opzet en bijzonder compleet te noemen, maar bovenal zal u opvallen dat het zeer stijlvol en rijk gedetailleerd is. In de ruime woonkamer wordt een hoekkeuken gerealiseerd die past binnen de sfeer van het appartement. Samen met de marmeren schouw en het rijk versierde plafond maakt dit het stijlvolle plaatje af.
Het romantisch overdekte balkon springt direct in het oog met haar ijzeren sierhekwerk, slanke kolommetjes en verfijnd versierde dak. Het balkon
is bereikbaar door middel van 2 originele schuifdeuren met bovenlichten, die de lichtopbrengst en kijk op de prachtig aangelegde stadstuin optimaal maken.
Via de private gang is de toiletruimte bereikbaar alsmede de separate badkamer die wordt voorzien van een douche en wastafel en een aparte wasmachineruimte. Op het einde van deze gang bevindt zich één van de eerste liften van Nederland met erop afgestemde deuren en met houtnerf beschilderd. Het geheel heeft een grote monumentale waarde zodat het in het pand aanwezig moet blijven. Het zijn juist deze kenmerkende details die dit appartement een heel bijzonder historisch karakter geven.
Een speels “doorsteekje” wordt gerealiseerd naar de slaapkamer, die zich aan de voorzijde van het pand bevindt.
Deze slaapkamer is zeer ruim van opzet en heeft twee prachtig grote vensters met achterzetramen ter voorkoming van tocht en als geluidwering. De slaapkamer wordt voorzien van mechanische ventilatie.
Renvooi
• De meeste ruimten zijn niet helemaal haaks, hierdoor kunnen afwijkingen ontstaan
• De plaats van radiatoren zijn aangegeven met een zwarte driehoek.; afmeting en aantal panelen hangt af van de betreffende ruimte en hoogte
overdekt balkon
• Koperswensen, die sterk afwijken van de plattegrond of impact hebben op constructieve elementen dan wel het uiterlijk van het gebouw, dienen te worden voorgelegd aan Monumentencommissie alvorens ze uitgevoerd kunnen worden





De 5 Patriciërs
Een unieke transformatie van het voormalige patriciërshuis naar 5 zelfstandige wooneenheden.
Naam contact op met Dolron Rivierenland Makelaars voor een uitgebreide brochure of bezichtiging.
Bekijk de unieke mogelijkheden
- Appartement A (verkocht onder voorbehoud)
- Appartement B (verkocht)
- Appartement C (verkocht)
- Appartement D (verkocht)
- Appartement E – Loft (te koop)