3 kamer appartement begane grond met aangesloten maisonnette, het voormalige “Maagdenhuisje”
Koopprijs: € 569.000 k.k.
Meerwerken reeds uitgevoerd:
• Fineo vacuümglas in de achtergevel (HR+++)
• Vloerverwarming in woonkamer, slaapkamer en keuken
• Plafond gefixeerd en hersteld
• Hardstenen trap en spatrand bij keuken
Prognose oplevering in mei 2023
Uiteraard fijn om te weten wat u precies kunt verwachten. De oplevering van dit appartement staat momenteel gepland in mei 2023.
Appartement A geeft u, door haar geheel organische en logische verbondenheid met het voormalig Maagdenhuisje, de echte beleving van het rijke historische leven van een “Tielsche Patriciër”.

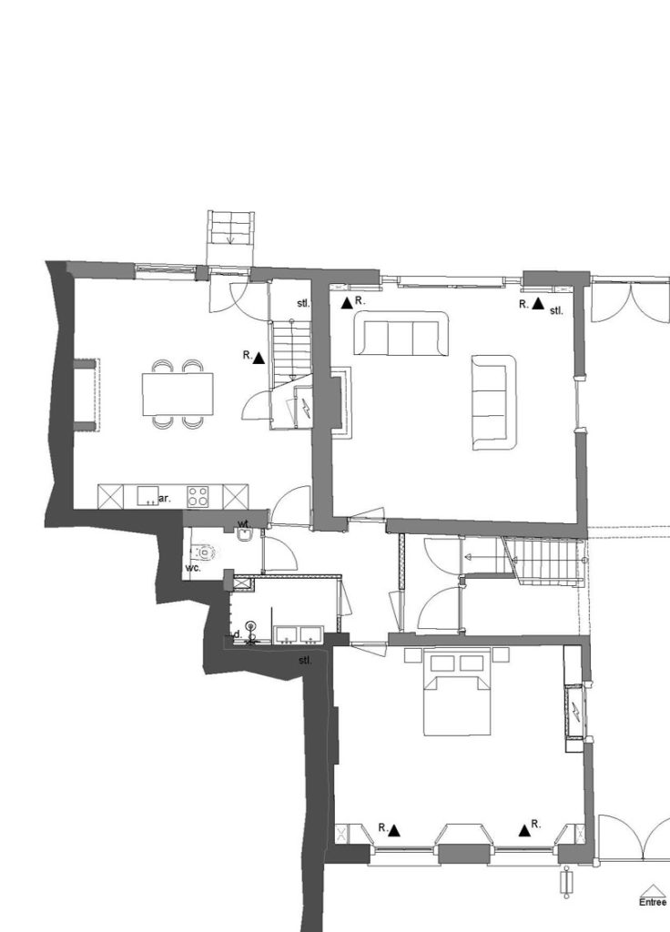
Indeling: Na binnenkomst in de ruime centrale hal van “De 5 Patriciërs” bevindt zich links naast de monumentale trap de voordeur van dit grote appartement van ruim 125 m2. Als u de eigen voordeur bent gepasseerd komt u in de private hal met origineel marmeren vloer. Deze ruimte biedt toegang naar de woonkamer, de keuken, de hoofd- slaapkamer, de toiletruimte en de badkamer.
De woonkamer heeft een rijk versierd plafond en een authentieke hardstenen schouw. De originele glazen schuifdeuren bieden ruim zicht op de Ambtmanstuin en het romantisch overdekte terras. De vroegere toegangsdeur is behouden gebleven echter brand- en geluidwerend gemaakt.
De slaapkamer op de begane grond is zeer stijlvol dankzij de hoge ramen en ornamenten op het plafond. Deze ruimte wordt voorzien van gesloten “achterzet- ramen” die tocht en geluidsoverlast van de straat grotendeels tegen houden; de ruimte wordt mechanisch geventileerd. De vroegere toegangsdeur gaat dienst doen als centrale meterkast en zal aan de zijde van de slaap- kamer geluid- en brandwerend afgewerkt worden en voorzien van een vaste kast.
De toegang van de badkamer bevindt zich in de hal tussen woonkamer en slaapkamer. Deze wordt uitgevoerd met een dubbele wastafel en een inloopdouche. De ruimte wordt mechanisch geventileerd en krijgt daglicht via een bestaand raam met ondoorzichtig glas in de achtergevel. De separate toilet is gesitueerd op het einde van de gang, naast de toegang naar de keuken.
Ook deze wordt mechanisch geventileerd.
Begane grond voormalig Maagdenhuisje
In vroegere tijden hadden de Patriciërs van Tiel een aparte keuken met verblijf voor personeel: het voormalig “Maagdenhuisje”. Deze is door de eeuwen heen gemoderniseerd maar mooi in stand gehouden. Ook nu wordt het geïntegreerd met appartement A, waardoor dit appartement een bijzonder karakter krijgt.
Op de begane grond van het Maagdenhuisje is een ruime woonkeuken gesitueerd, die behalve een keukenblok ook ruimte kan bieden aan een eettafel voor 6 tot 8 personen. De bestaande schouw is eventueel bruikbaar te maken voor het plaatsen van een groot fornuis
of cooker. In dat geval dient nog wel een inwendig rookkanaal te worden geplaatst als kopers wens, in de bestaande schoorsteen.
Het originele balkenplafond en de houten rabatdelen geven de woonkeuken een authentieke uitstraling en ook de reeds genoemde grote schouw draagt daartoe bij. In de trapkast bevindt een afgesloten meterkast en de installatie van de keukenvloer-verwarming; de trapkast is tevens bruikbaar voor (keuken)voorraad. De authentieke trap naar de slaap-/werkkamer/atelier op de eerste verdieping bevindt zich eveneens achter een
authentieke rabatdelen deur.
De bestaande tuindeur in de keuken biedt via een aantal traptreden ruimte aan een privaat terras op tuinniveau met een vrije uitloop naar de prachtige Ambtmanstuin; vanwege haar ligging op het zuiden heerlijk voor een ontbijtje of lunch in de zon.
1e verdieping voormalig Maagdenhuisje
Via de romantische houten trap die zich bevindt achter de kralenplanken wand in de keuken komt u uit op de eerste verdieping en waant u zich terug in de tijd. Onder de eeuwenoude houten spanten en de fraaie dakconstructie bevindt zich een opmerkelijk grote en lichte kamer die te gebruiken is als hobbykamer, slaapkamer, werkkamer of wat u maar wilt. Er is zelfs voldoende ruimte om een tweede badkamer te realiseren als meerwerk-optie, waarbij nog voldoende ruimte over blijft voor de inrichting van een sfeervolle één- of tweepersoons (logeer)kamer.
De kap is geïsoleerd uitgevoerd en de ruimte wordt verwarmd door nieuwe radiatoren, die een behaaglijke temperatuur kunnen halen.
De twee bestaande dakramen zijn voorzien van dubbel glas en hebben een ventilatie-stand ter beluchting van de ruimte.
De ruimteafwerking wordt u aangeboden in de staat waarin deze zich momenteel bevindt. Wel zullen er op een aantal logische plaatsen nog wandcontactdozen worden toegevoegd.









De 5 Patriciërs
Een unieke transformatie van het voormalige patriciërshuis naar 5 zelfstandige wooneenheden.
Naam contact op met Dolron Rivierenland Makelaars voor een uitgebreide brochure of bezichtiging.
Bekijk de unieke mogelijkheden
- Appartement A (verkocht onder voorbehoud)
- Appartement B (verkocht)
- Appartement C (verkocht)
- Appartement D (verkocht)
- Appartement E – Loft (te koop)